Информационная система
«Ёшкин Кот»

Государственные стандартыДекларация о соответствии Единый перечень продукции ТС Классификатор государственных стандартов Общероссийский классификатор стандартов Обязательная сертификация Окп Тематические сборники Технические регламенты РФ Технические регламенты Таможенного союзаСтроительная документацияТехническая документация

Найти:
Где:
Отображать:
Упорядочить:

Скачать ГОСТ Р 71690-2024 Комплексы для производства, хранения и отгрузки сжиженного природного газа. Технологические блоки сжижения природного газа. Соединительные детали трубопроводов из аустенитной стали. Общие технические условия

Дата актуализации: 01.06.2025

ГОСТ Р 71690-2024

Комплексы для производства, хранения и отгрузки сжиженного природного газа. Технологические блоки сжижения природного газа. Соединительные детали трубопроводов из аустенитной стали. Общие технические условия

Обозначение: ГОСТ Р 71690-2024
Статус:действует
Название рус.:Комплексы для производства, хранения и отгрузки сжиженного природного газа. Технологические блоки сжижения природного газа. Соединительные детали трубопроводов из аустенитной стали. Общие технические условия
Название англ.:Complexes for the production, storage and shipment of liquefied natural gas. Technological units of natural gas liquefaction. Connecting parts of pipelines made of austenitic steels. General technical specifications
Дата актуализации текста:01.06.2025
Дата актуализации описания:01.06.2025
Дата издания:29.11.2024
Дата введения:01.02.2025
Нормативные ссылки:ГОСТ 162;ГОСТ 577;ГОСТ 1497;ГОСТ 1778;ГОСТ 3845;ГОСТ 5639;ГОСТ 5640;ГОСТ 6032;ГОСТ 6507;ГОСТ 6996;ГОСТ 7512;ГОСТ 7565;ГОСТ 9012;ГОСТ 9454;ГОСТ 9651;ГОСТ 10692;ГОСТ 16037;ГОСТ 16504;ГОСТ 18895;ГОСТ 19040;ГОСТ 21014;ГОСТ 22848;ГОСТ 28338;ГОСТ 30432;ГОСТ 31458;ГОСТ 32388;ГОСТ 32569-2013;ГОСТ 33439;ГОСТ ISO 17636-1;ГОСТ ISO 17636-2;ГОСТ Р 54153;ГОСТ Р ИСО 148-1;ГОСТ Р ИСО 5817;ГОСТ Р ИСО 14284;ГОСТ Р ИСО 17640
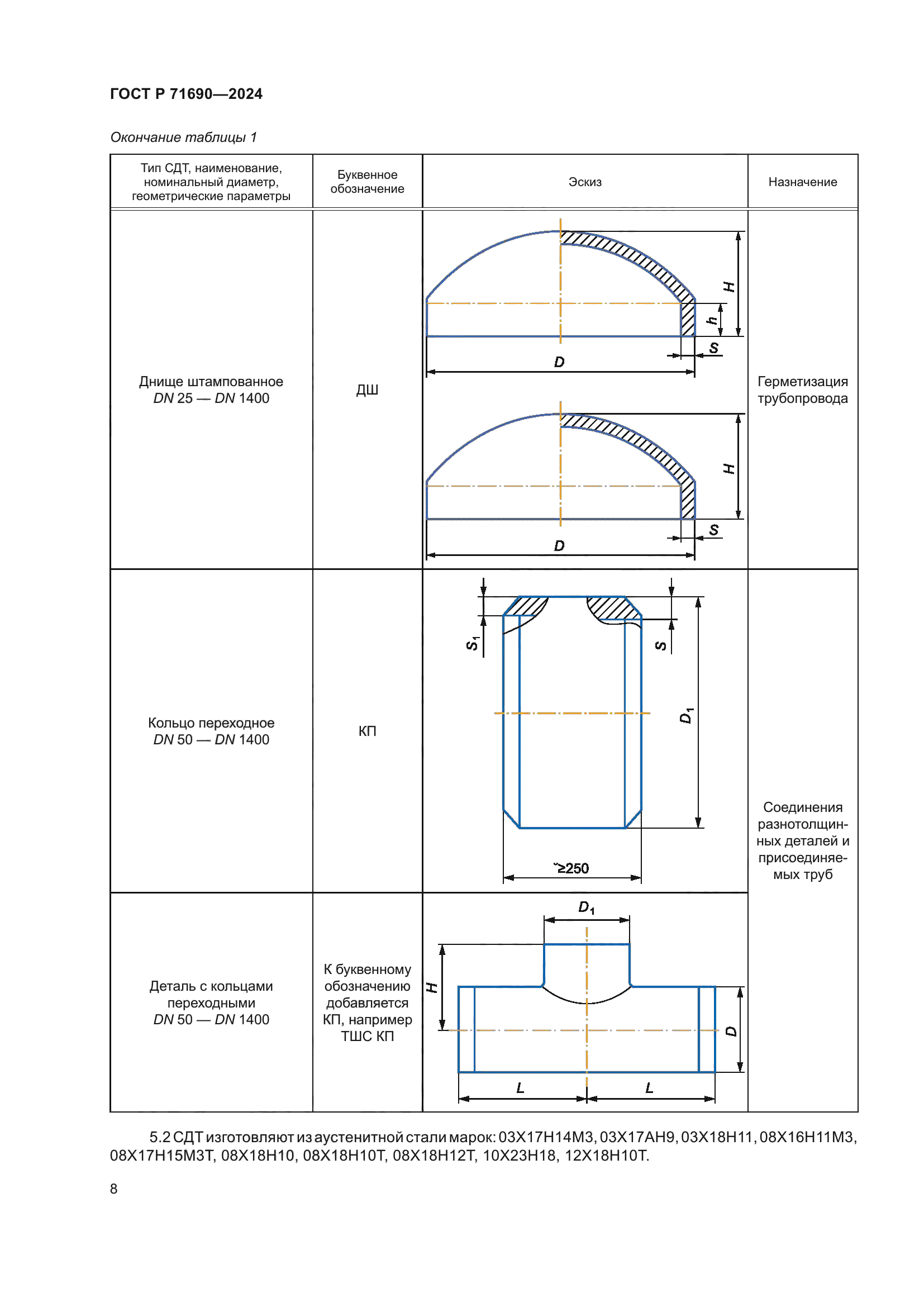
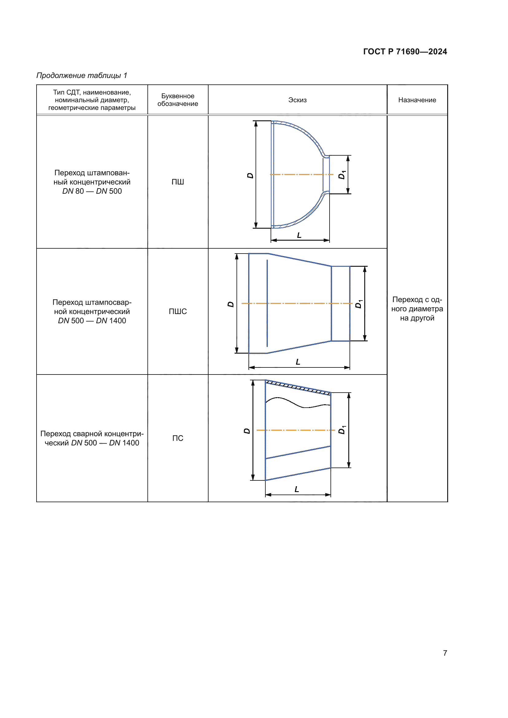
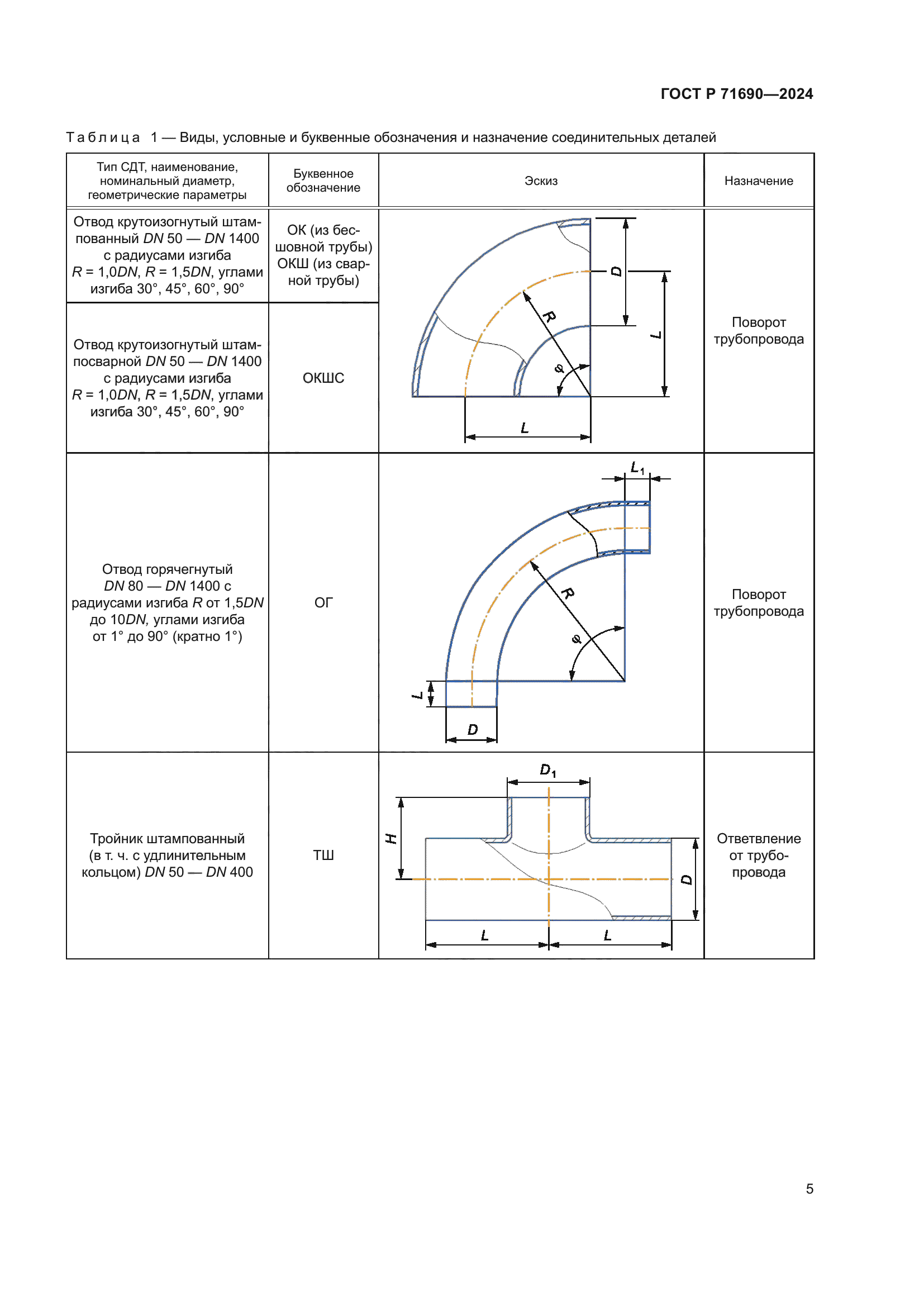
Область применения:Настоящий стандарт распространяется на соединительные детали трубопроводов приварные [отводы, тройники, переходы, днища, кольца переходные, детали с кольцами и тройники с решетками] с расчетным давлением от 1,6 до 25,0 МПа, номинальными диаметрами от DN 50 до DN 1400, из аустенитной стали, применяемые для строительства комплексов, предназначенных для производства, хранения и отгрузки сжиженного природного газа
Расположен в:Государственные стандарты Общероссийский классификатор стандартов Гидравлические и пневматические системы и компоненты общего назначения Трубопроводы и их компоненты
ГОСТ Р 71690-2024ГОСТ Р 71690-2024ГОСТ Р 71690-2024ГОСТ Р 71690-2024ГОСТ Р 71690-2024ГОСТ Р 71690-2024ГОСТ Р 71690-2024ГОСТ Р 71690-2024ГОСТ Р 71690-2024ГОСТ Р 71690-2024ГОСТ Р 71690-2024ГОСТ Р 71690-2024ГОСТ Р 71690-2024ГОСТ Р 71690-2024ГОСТ Р 71690-2024ГОСТ Р 71690-2024ГОСТ Р 71690-2024ГОСТ Р 71690-2024ГОСТ Р 71690-2024ГОСТ Р 71690-2024ГОСТ Р 71690-2024ГОСТ Р 71690-2024ГОСТ Р 71690-2024ГОСТ Р 71690-2024ГОСТ Р 71690-2024ГОСТ Р 71690-2024ГОСТ Р 71690-2024ГОСТ Р 71690-2024ГОСТ Р 71690-2024ГОСТ Р 71690-2024ГОСТ Р 71690-2024ГОСТ Р 71690-2024ГОСТ Р 71690-2024ГОСТ Р 71690-2024ГОСТ Р 71690-2024ГОСТ Р 71690-2024ГОСТ Р 71690-2024ГОСТ Р 71690-2024ГОСТ Р 71690-2024ГОСТ Р 71690-2024ГОСТ Р 71690-2024ГОСТ Р 71690-2024ГОСТ Р 71690-2024ГОСТ Р 71690-2024ГОСТ Р 71690-2024ГОСТ Р 71690-2024ГОСТ Р 71690-2024ГОСТ Р 71690-2024ГОСТ Р 71690-2024ГОСТ Р 71690-2024ГОСТ Р 71690-2024ГОСТ Р 71690-2024ГОСТ Р 71690-2024ГОСТ Р 71690-2024

© 2013 Ёшкин Кот :-) Карта сайта