| Обозначение: |  ГОСТ Р ИСО 15618-2-2024 |
| Статус: | действует |
| Название рус.: | Аттестационные испытания сварщиков для подводной сварки. Часть 2. Водолазы-сварщики и сварщики-операторы гипербарической сухой сварки |
| Название англ.: | Qualification testing of welders for underwater welding. Part 2. Diver-welders and welding operators for hyperbaric dry welding |
| Дата актуализации текста: | 01.06.2025 |
| Дата актуализации описания: | 01.06.2025 |
| Дата издания: | 26.11.2024 |
| Дата введения: | 01.12.2024 |
| Аутентичен стандартам: | ISO 15618-2:2001 |
| Нормативные ссылки: | ISO 857-1;ISO 3581;EN 288-1;EN 288-2;EN 499;EN 571-1;EN 910;EN 970;EN 1290;EN 1320;EN 1321;EN 1418;EN 1435;EN 1600;EN 1714;EN ISO 4063;prEN ISO 5817;EN ISO 6520-1;EN ISO 6947;CR ISO 15608 |
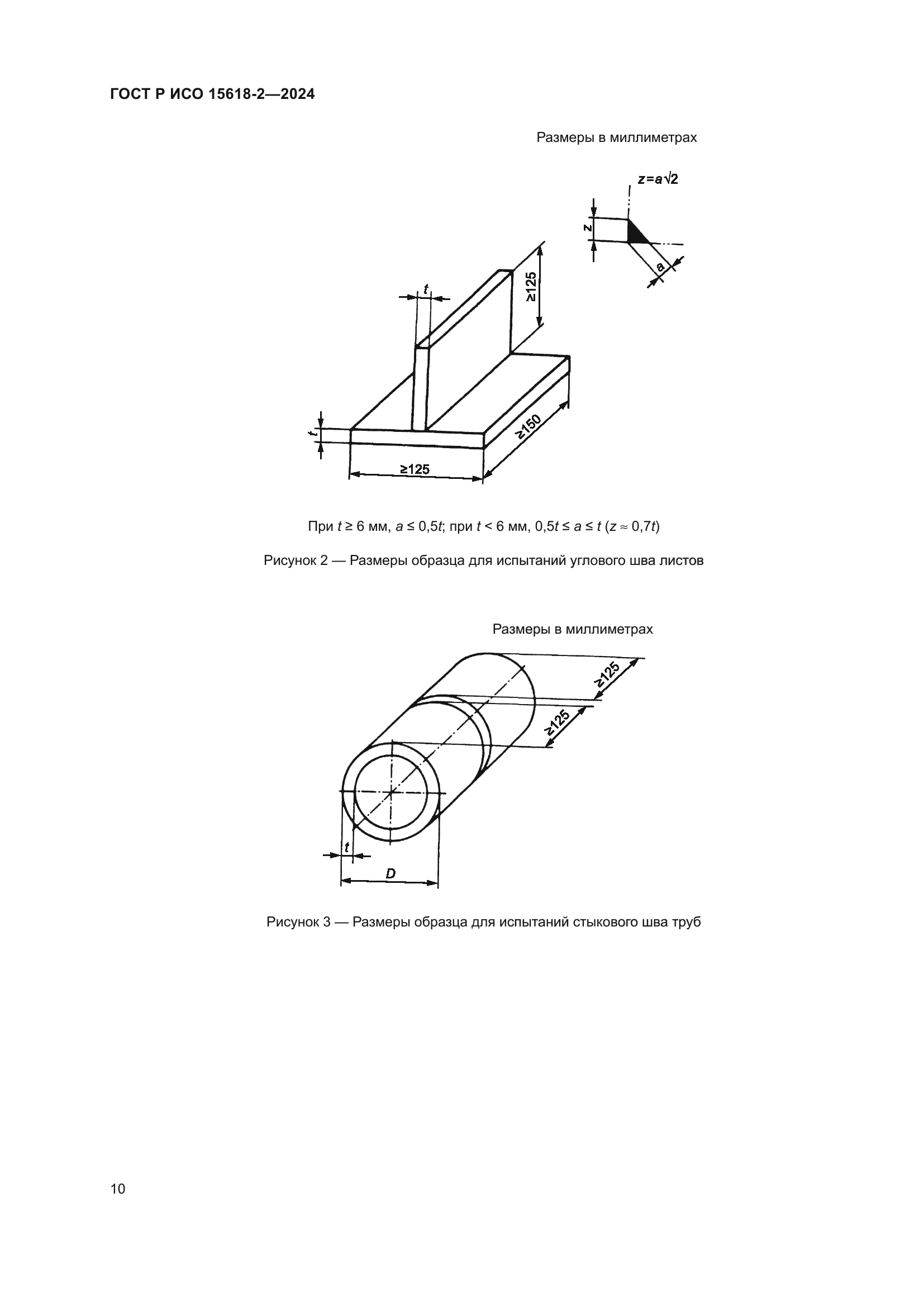
| Область применения: | Настоящий стандарт применяется к сварочным процессам при которых умение водолаза-сварщика или сварщика-оператора оказывает существенное влияние на качество сварки. В настоящем стандарте приведены основные требования, условия испытаний, область аттестации, требования по приему и признанию результатов аттестационных испытаний водолаза-сварщика или сварщика-оператора при сварке сталей под водой в сухих гипербарических условиях. Рекомендуемая форма аттестационного удостоверения приведена в приложении A. Во время аттестационного испытания водолаз-сварщик или сварщик-оператор должен продемонстрировать достаточный практический опыт и профессиональные знания (не обязательно) сварочных процессов, материалов и требований безопасности в соответствии с которыми он должен быть аттестован. Информация о критериях оценки приведена в приложении B. Настоящий стандарт применяют в случаях, когда аттестационные испытания водолаза-сварщика или сварщика-оператора требуют заказчик, проверяющие органы или иные организации. Сварочные процессы, рассматриваемые в настоящем стандарте, включают процессы сварки плавлением, такие как ручная или частично механизированная сварка для водолазов-сварщиков и полностью механизированная или автоматическая сварка для сварщиков-операторов (см. 5.2). Настоящий стандарт применим ко всем новым аттестациям |
|
| Расположен в: |
|