Информационная система
«Ёшкин Кот»

Государственные стандартыДекларация о соответствии Единый перечень продукции ТС Классификатор государственных стандартов Общероссийский классификатор стандартов Обязательная сертификация Окп Тематические сборники Технические регламенты РФ Технические регламенты Таможенного союзаСтроительная документацияТехническая документация

Найти:
Где:
Отображать:
Упорядочить:

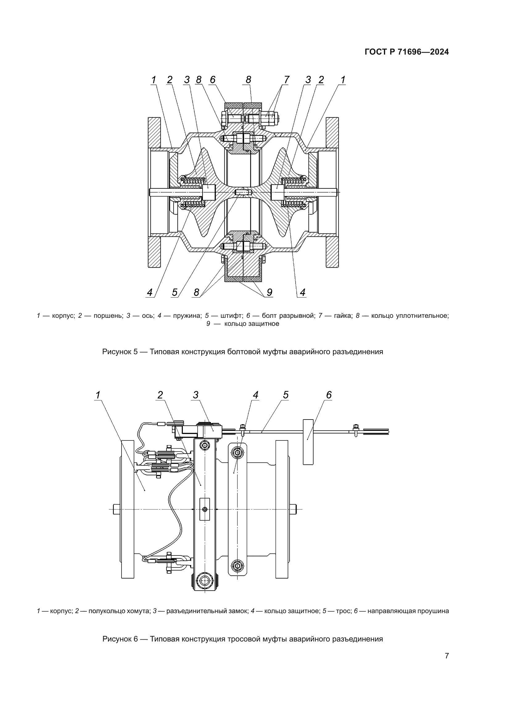
Скачать ГОСТ Р 71696-2024 Инфраструктура для производства, хранения и отгрузки сжиженного природного газа. Установки отгрузки сжиженного природного газа в автоцистерны, железнодорожные цистерны и другие криогенные емкости. Муфты аварийного разъединения, быстроразъемные и сухие разъемные соединения для безопасной отгрузки сжиженного природного газа. Общие технические условия

Дата актуализации: 01.06.2025

ГОСТ Р 71696-2024

Инфраструктура для производства, хранения и отгрузки сжиженного природного газа. Установки отгрузки сжиженного природного газа в автоцистерны, железнодорожные цистерны и другие криогенные емкости. Муфты аварийного разъединения, быстроразъемные и сухие разъемные соединения для безопасной отгрузки сжиженного природного газа. Общие технические условия

Обозначение: ГОСТ Р 71696-2024
Статус:действует
Название рус.:Инфраструктура для производства, хранения и отгрузки сжиженного природного газа. Установки отгрузки сжиженного природного газа в автоцистерны, железнодорожные цистерны и другие криогенные емкости. Муфты аварийного разъединения, быстроразъемные и сухие разъемные соединения для безопасной отгрузки сжиженного природного газа. Общие технические условия
Название англ.:Infrastructure for the production, storage and shipment of liquefied natural gas. LNG shipping installations to tank trucks, railway tankers and other cryogenic containers. Emergency release couplings, quick release and dry release couplings for safe LNG loading. General specifications
Дата актуализации текста:01.06.2025
Дата актуализации описания:01.06.2025
Дата издания:28.11.2024
Дата введения:03.03.2025
Нормативные ссылки:ГОСТ 2.124;ГОСТ 12.2.003;ГОСТ 12.2.063;ГОСТ 1497;ГОСТ 7512;ГОСТ 15150;ГОСТ 18442;ГОСТ 24297;ГОСТ 28840;ГОСТ 33856;ГОСТ 34294;ГОСТ 55724;ГОСТ Р 8.568;ГОСТ Р 71697;ГОСТ Р ИСО 17637
Область применения:Настоящий стандарт устанавливает классификацию, технические требования, требования безопасности и охраны окружающей среды, правила приемки, методы контроля, требования по транспортированию и хранению, указания по эксплуатации и утилизации, условия применения, гарантии изготовителя для муфт аварийного разъединения, быстроразъемных и сухих разъемных соединений для безопасной отгрузки СПГ. Настоящий стандарт распространяется на муфты аварийного разъединения, быстроразъемные и сухие разъемные соединения, эксплуатируемые в составе технологических трубопроводов, в составе стендеров и шланговых установок отгрузки СПГ в танкеры и отводы отпарного газа, бункеровки судов, отгрузки СПГ в автоцистерны, железнодорожные цистерны и другие криогенные емкости, а также в пунктах заправки авто-, ж/д, водного и авиатранспорта конечных потребителей
Расположен в:Государственные стандарты Общероссийский классификатор стандартов Добыча и переработка нефти, газа и смежные производства Оборудование для нефтяной и газовой промышленности
ГОСТ Р 71696-2024ГОСТ Р 71696-2024ГОСТ Р 71696-2024ГОСТ Р 71696-2024ГОСТ Р 71696-2024ГОСТ Р 71696-2024ГОСТ Р 71696-2024ГОСТ Р 71696-2024ГОСТ Р 71696-2024ГОСТ Р 71696-2024ГОСТ Р 71696-2024ГОСТ Р 71696-2024ГОСТ Р 71696-2024ГОСТ Р 71696-2024ГОСТ Р 71696-2024ГОСТ Р 71696-2024ГОСТ Р 71696-2024ГОСТ Р 71696-2024ГОСТ Р 71696-2024ГОСТ Р 71696-2024ГОСТ Р 71696-2024ГОСТ Р 71696-2024ГОСТ Р 71696-2024ГОСТ Р 71696-2024ГОСТ Р 71696-2024ГОСТ Р 71696-2024ГОСТ Р 71696-2024ГОСТ Р 71696-2024ГОСТ Р 71696-2024ГОСТ Р 71696-2024ГОСТ Р 71696-2024ГОСТ Р 71696-2024ГОСТ Р 71696-2024ГОСТ Р 71696-2024ГОСТ Р 71696-2024ГОСТ Р 71696-2024ГОСТ Р 71696-2024ГОСТ Р 71696-2024ГОСТ Р 71696-2024ГОСТ Р 71696-2024

© 2013 Ёшкин Кот :-) Карта сайта