Информационная система
«Ёшкин Кот»

Государственные стандартыДекларация о соответствии Единый перечень продукции ТС Классификатор государственных стандартов Общероссийский классификатор стандартов Обязательная сертификация Окп Тематические сборники Технические регламенты РФ Технические регламенты Таможенного союзаСтроительная документацияТехническая документация

Найти:
Где:
Отображать:
Упорядочить:

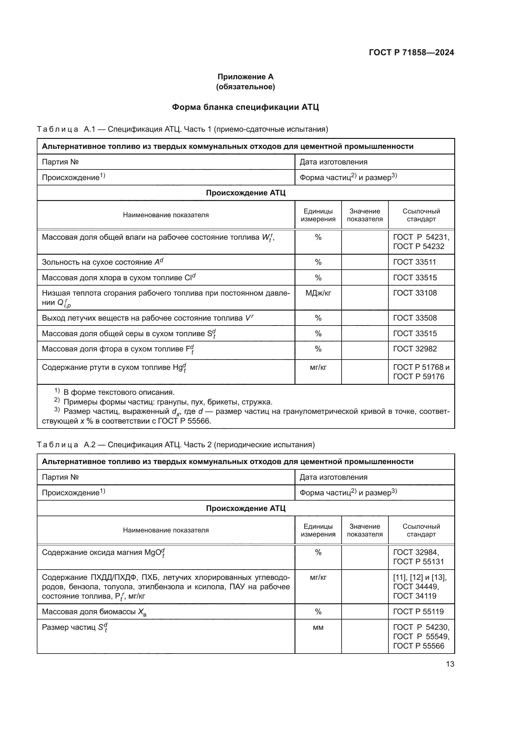
Скачать ГОСТ Р 71858-2024 Ресурсосбережение. Альтернативное топливо из твердых коммунальных отходов для цементной промышленности. Технические условия

Дата актуализации: 01.06.2025

ГОСТ Р 71858-2024

Ресурсосбережение. Альтернативное топливо из твердых коммунальных отходов для цементной промышленности. Технические условия

Обозначение: ГОСТ Р 71858-2024
Статус:действует
Название рус.:Ресурсосбережение. Альтернативное топливо из твердых коммунальных отходов для цементной промышленности. Технические условия
Название англ.:Resource Saving. Alternative fuel from municipal solid waste for the cement industry. Specifications
Дата актуализации текста:01.06.2025
Дата актуализации описания:01.06.2025
Дата издания:20.12.2024
Дата введения:01.02.2025
Нормативные ссылки:ГОСТ 12.1.003;ГОСТ 12.1.004;ГОСТ 12.1.005;ГОСТ 12.1.007;ГОСТ 12.1.012;ГОСТ 12.3.009;ГОСТ 12.4.011;ГОСТ 12.4.041;ГОСТ 12.4.103;ГОСТ 14192;ГОСТ 20010;ГОСТ 27313;ГОСТ 27574;ГОСТ 27575;ГОСТ 30108;ГОСТ 30166;ГОСТ 30772;ГОСТ 32982;ГОСТ 32984;ГОСТ 33108;ГОСТ 33508;ГОСТ 33509;ГОСТ 33510;ГОСТ 33511;ГОСТ 33512.3;ГОСТ 33513;ГОСТ 33515;ГОСТ 33516;ГОСТ 33521;ГОСТ 33564;ГОСТ 33626;ГОСТ 34119;ГОСТ 34449;ГОСТ 34757;ГОСТ Р 51768;ГОСТ Р 53691;ГОСТ Р 53692;ГОСТ Р 54225;ГОСТ Р 54230;ГОСТ Р 54231;ГОСТ Р 54232;ГОСТ Р 55119;ГОСТ Р 55127;ГОСТ Р 55131;ГОСТ Р 55133;ГОСТ Р 55549;ГОСТ Р 55566;ГОСТ Р 56828.26;ГОСТ Р 56828.30;ГОСТ Р 59176;ГОСТ Р 70719;ГОСТ Р 113.00.12;ОК 007;ОК 029
Область применения:Настоящий стандарт устанавливает требования к альтернативному топливу из твердых коммунальных отходов для цементной промышленности, изготовленному из неопасных отходов путем комплексной сортировки твердых коммунальных отходов, извлечения, сепарации и дробления целевых высококалорийных фракций (см. приложение Б). Настоящий стандарт предназначен для применения на добровольной основе предприятиями цементной промышленности топлива из твердых коммунальных отходов в качестве альтернативного в цементных печах как «мокрого», так и «сухого» способа производства и устанавливает предельные характеристики для обеспечения соответствия критериям сжигания отходов на стадии утилизации и техническим требованиям установок сжигания
Расположен в:Государственные стандарты Общероссийский классификатор стандартов Добыча и переработка нефти, газа и смежные производства Топливо Твердое топливо
ГОСТ Р 71858-2024ГОСТ Р 71858-2024ГОСТ Р 71858-2024ГОСТ Р 71858-2024ГОСТ Р 71858-2024ГОСТ Р 71858-2024ГОСТ Р 71858-2024ГОСТ Р 71858-2024ГОСТ Р 71858-2024ГОСТ Р 71858-2024ГОСТ Р 71858-2024ГОСТ Р 71858-2024ГОСТ Р 71858-2024ГОСТ Р 71858-2024ГОСТ Р 71858-2024ГОСТ Р 71858-2024ГОСТ Р 71858-2024ГОСТ Р 71858-2024ГОСТ Р 71858-2024ГОСТ Р 71858-2024ГОСТ Р 71858-2024ГОСТ Р 71858-2024ГОСТ Р 71858-2024ГОСТ Р 71858-2024

© 2013 Ёшкин Кот :-) Карта сайта