Информационная система
«Ёшкин Кот»

Государственные стандартыДекларация о соответствии Единый перечень продукции ТС Классификатор государственных стандартов Общероссийский классификатор стандартов Обязательная сертификация Окп Тематические сборники Технические регламенты РФ Технические регламенты Таможенного союзаСтроительная документацияТехническая документация

Найти:
Где:
Отображать:
Упорядочить:

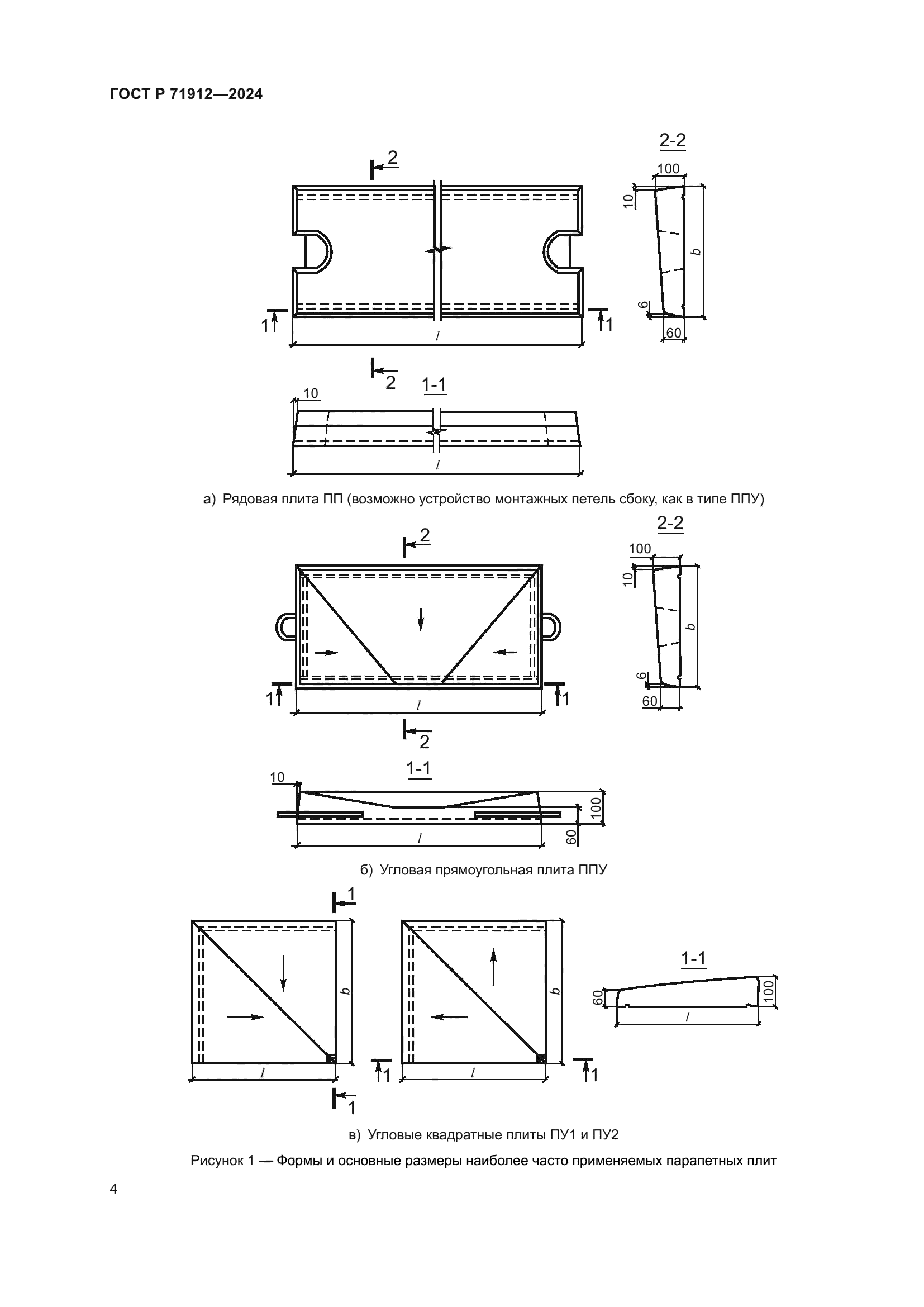
Скачать ГОСТ Р 71912-2024 Плиты парапетные железобетонные для производственных зданий. Технические условия

Дата актуализации: 01.06.2025

ГОСТ Р 71912-2024

Плиты парапетные железобетонные для производственных зданий. Технические условия

Обозначение: ГОСТ Р 71912-2024
Статус:действует
Название рус.:Плиты парапетные железобетонные для производственных зданий. Технические условия
Название англ.:Coping units of precast concrete for industrial buildings. Specifications
Дата актуализации текста:01.06.2025
Дата актуализации описания:01.06.2025
Дата издания:21.01.2025
Дата введения:01.03.2025
Нормативные ссылки:ГОСТ 535;ГОСТ 8829;ГОСТ 10060;ГОСТ 10180;ГОСТ 10181;ГОСТ 12730.0;ГОСТ 12730.1;ГОСТ 12730.3;ГОСТ 12730.5;ГОСТ 13015;ГОСТ 14098;ГОСТ 15467;ГОСТ 16504;ГОСТ 17623;ГОСТ 17624;ГОСТ 17625;ГОСТ 18105;ГОСТ 22690;ГОСТ 22904;ГОСТ 23009;ГОСТ 23279;ГОСТ 24297;ГОСТ 25781;ГОСТ 25820;ГОСТ 26134;ГОСТ 26633;ГОСТ 31384;ГОСТ Р 57997;ГОСТ Р 58939;ГОСТ Р 58941;ГОСТ Р 58944;ГОСТ Р ИСО 9000;СП 14.13330;СП 28.13330
Область применения:Настоящий стандарт устанавливает технические требования, методы контроля и испытаний, правила приемки, транспортирования и хранения железобетонных парапетных плит для производственных и вспомогательных зданий промышленных и сельскохозяйственных предприятий. Настоящий стандарт распространяется на парапетные железобетонные плиты, изготовляемые из тяжелого и легкого конструкционного бетона и предназначаемые для покрытия парапетов
Расположен в:Государственные стандарты Общероссийский классификатор стандартов Строительные материалы и строительство Конструкции зданий Бетонные конструкции
ГОСТ Р 71912-2024ГОСТ Р 71912-2024ГОСТ Р 71912-2024ГОСТ Р 71912-2024ГОСТ Р 71912-2024ГОСТ Р 71912-2024ГОСТ Р 71912-2024ГОСТ Р 71912-2024ГОСТ Р 71912-2024ГОСТ Р 71912-2024ГОСТ Р 71912-2024ГОСТ Р 71912-2024

© 2013 Ёшкин Кот :-) Карта сайта