| Обозначение: |  ГОСТ Р 71948-2025 |
| Статус: | принят |
| Название рус.: | Устройство контрольного разделительного слоя крыш и подземных частей зданий и сооружений. Правила и контроль выполнения работ |
| Название англ.: | Installation of a control separation layer of roofs and underground parts of buildings and structures. Requirements for manufacturing and control operations |
| Дата актуализации текста: | 01.06.2025 |
| Дата актуализации описания: | 01.06.2025 |
| Дата издания: | 03.03.2025 |
| Дата введения: | 01.09.2025 |
| Нормативные ссылки: | ГОСТ 12.1.019; ГОСТ 427; ГОСТ 7502; ГОСТ 16504; ГОСТ 19170-2001; ГОСТ 21830; ГОСТ 24297-2013; ГОСТ 30244; ГОСТ Р 50276; ГОСТ Р 50277; ГОСТ Р 51015; ГОСТ Р 53226; ГОСТ Р 57027; ГОСТ Р 59122-2020; ГОСТ Р ИСО 9000; ГОСТ Р ИСО 9712;СП 17.13330.2017;СП 28.13330;СП 48.13330;СП 71.13330;СП 229.1325800 (с изменением № 1);СП 250.1325800 (с изменением № 1) |
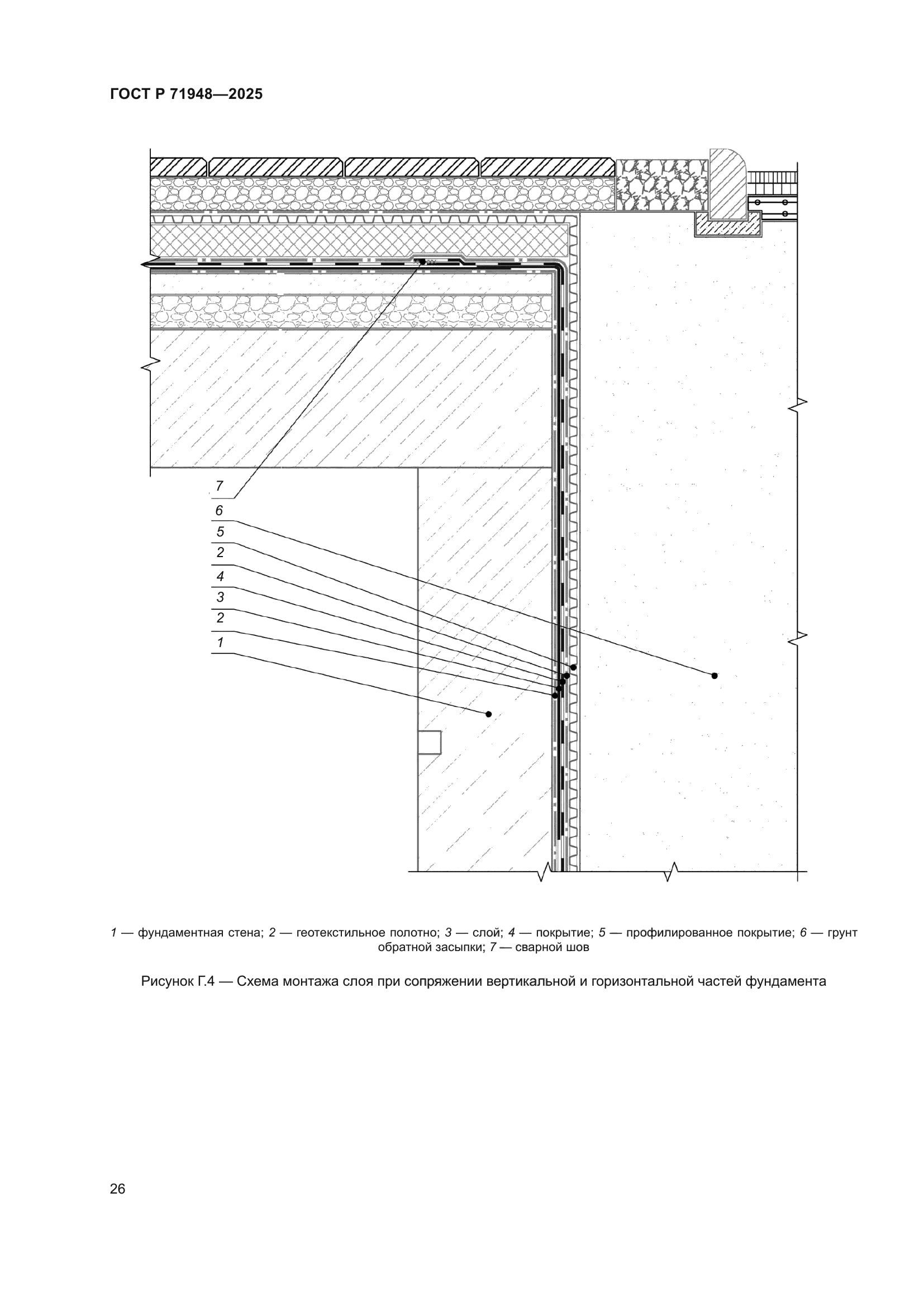
| Область применения: | Настоящий стандарт распространяется на процессы устройства контрольного разделительного слоя на крышах и подземных частях зданий и сооружений, на которых предусмотрено устройство водоизоляционного ковра из битумного, битумно-полимерного или полимерного материала путем механического крепления или свободного укладывания с последующим пригрузом, а для случая укладки в составе сборной стяжки на крышах также путем приклеивания |
|
| Расположен в: |
|