| Обозначение: |  ГОСТ Р 71959-2025 |
| Статус: | принят |
| Название рус.: | Система стандартов безопасности труда. Электробезопасность. Методика расчета вероятного значения падающей энергии электрической дуги в электроустановках |
| Название англ.: | Occupational safety standards system. Electrical safety. Methods for calculating the probable value of the incident energy of an electric arc in electrical installations |
| Дата актуализации текста: | 01.06.2025 |
| Дата актуализации описания: | 01.06.2025 |
| Дата издания: | 18.03.2025 |
| Дата введения: | 10.11.2025 |
| Нормативные ссылки: | ГОСТ 12.1.009; ГОСТ 24291 |
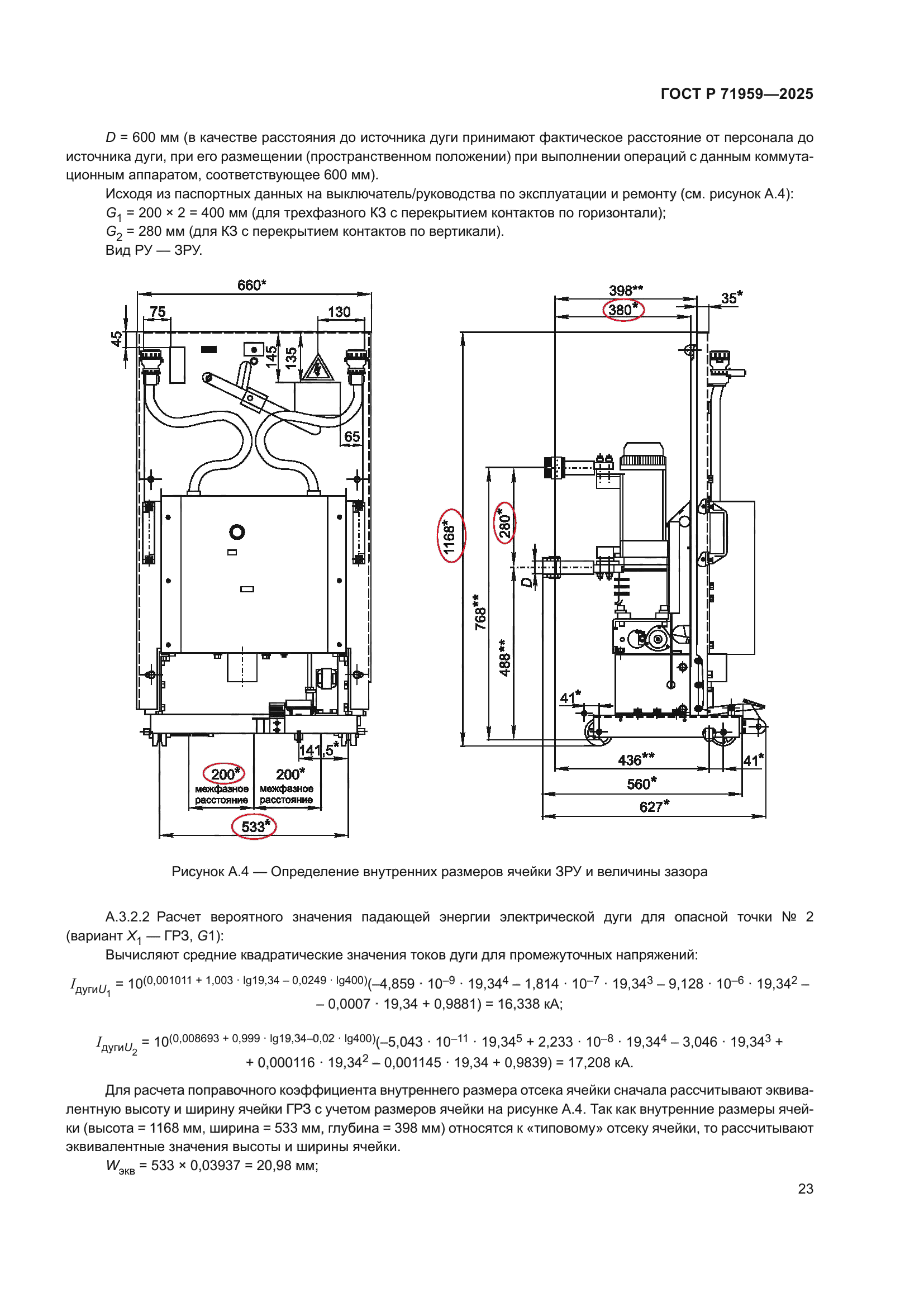
| Область применения: | Настоящий стандарт устанавливает порядок расчета вероятного значения падающей энергии электрической дуги в электроустановках (далее – расчет падающей энергии электрической дуги) на основе эмпирических моделей расчета. Модели расчета вероятного значения падающей энергии электрической дуги (далее – модели расчета), приведенные в настоящем стандарте, применяют для электроустановок переменного тока, при эксплуатации которых существует вероятность возникновения электрической дуги |
|
| Расположен в: |
|