Информационная система
«Ёшкин Кот»

Государственные стандартыДекларация о соответствии Единый перечень продукции ТС Классификатор государственных стандартов Общероссийский классификатор стандартов Обязательная сертификация Окп Тематические сборники Технические регламенты РФ Технические регламенты Таможенного союзаСтроительная документацияТехническая документация

Найти:
Где:
Отображать:
Упорядочить:

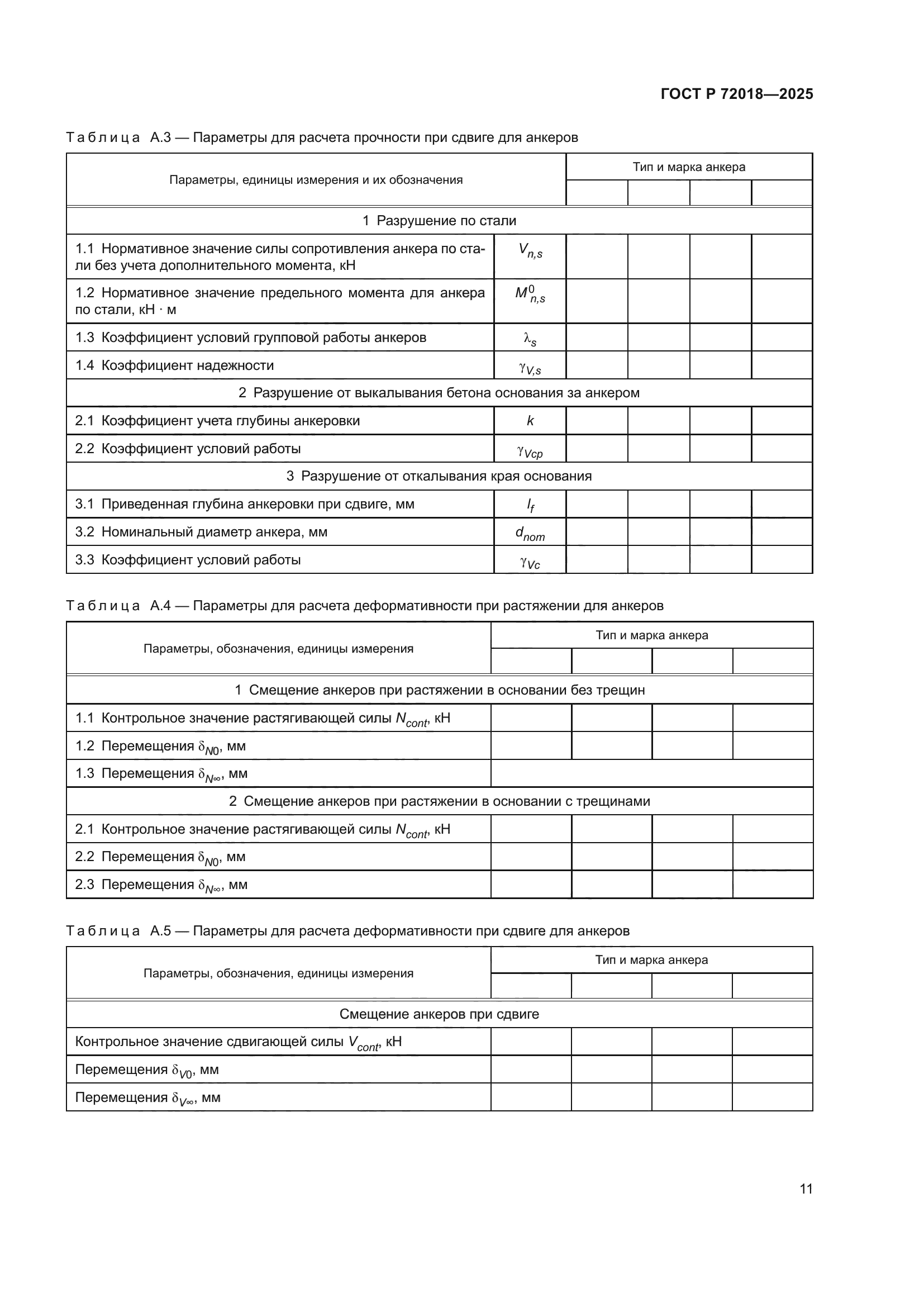
Скачать ГОСТ Р 72018-2025 Анкеры механические для крепления в бетоне. Общие технические условия

Дата актуализации: 01.01.2026

ГОСТ Р 72018-2025

Анкеры механические для крепления в бетоне. Общие технические условия

Обозначение: ГОСТ Р 72018-2025
Статус:действует
Название рус.:Анкеры механические для крепления в бетоне. Общие технические условия
Название англ.:Mechanical anchors for use in concrete. General specifications
Дата актуализации текста:01.06.2025
Дата актуализации описания:01.01.2026
Дата издания:22.04.2025
Дата введения:01.07.2025
Нормативные ссылки:ГОСТ 12.1.004;ГОСТ 12.1.019;ГОСТ 12.2.029;ГОСТ 12.2.107;ГОСТ 166;ГОСТ 427;ГОСТ 7502;ГОСТ 15150;ГОСТ 21650;ГОСТ 23118;ГОСТ 24705;ГОСТ 26633;ГОСТ 30775;ГОСТ ISO 4032;ГОСТ ISO 7093-1;ГОСТ Р 56731;ГОСТ Р 57787;ГОСТ Р 58430
Область применения:Настоящий стандарт распространяется на механические анкеры c контролем момента затяжки, с контролем перемещения, анкеры-шурупы и анкеры с уширением, установленные по месту, в предварительно просверленные отверстия, предназначенные для ответственных креплений в основании из тяжелого бетона
Расположен в:Государственные стандарты Общероссийский классификатор стандартов Строительные материалы и строительство Арматура для зданий
ГОСТ Р 72018-2025ГОСТ Р 72018-2025ГОСТ Р 72018-2025ГОСТ Р 72018-2025ГОСТ Р 72018-2025ГОСТ Р 72018-2025ГОСТ Р 72018-2025ГОСТ Р 72018-2025ГОСТ Р 72018-2025ГОСТ Р 72018-2025ГОСТ Р 72018-2025ГОСТ Р 72018-2025ГОСТ Р 72018-2025ГОСТ Р 72018-2025ГОСТ Р 72018-2025ГОСТ Р 72018-2025

© 2013 Ёшкин Кот :-) Карта сайта