Информационная система
«Ёшкин Кот»

Государственные стандартыДекларация о соответствии Единый перечень продукции ТС Классификатор государственных стандартов Общероссийский классификатор стандартов Обязательная сертификация Окп Тематические сборники Технические регламенты РФ Технические регламенты Таможенного союзаСтроительная документацияТехническая документация

Найти:
Где:
Отображать:
Упорядочить:

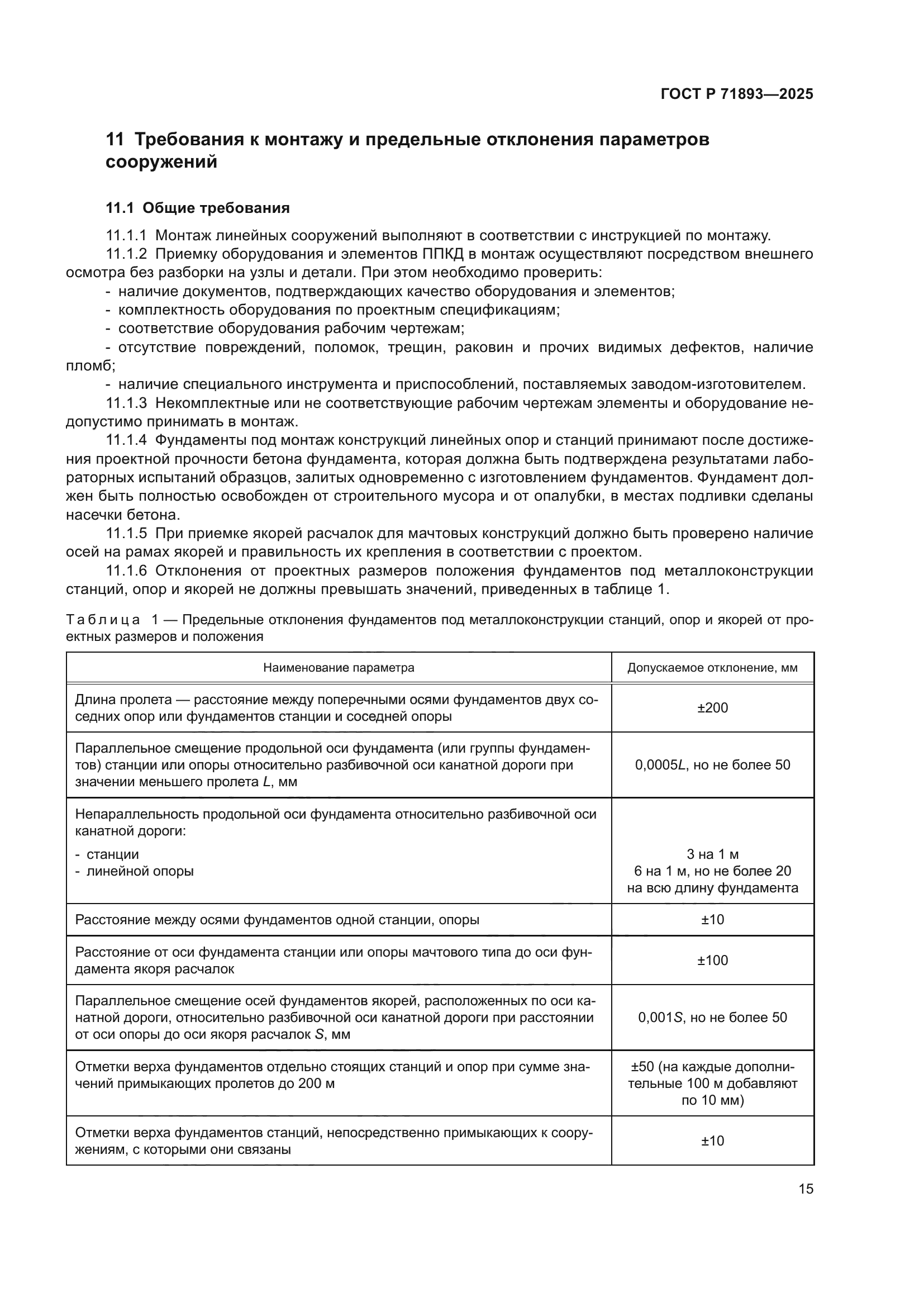
Скачать ГОСТ Р 71893-2025 Подвесные канатные дороги для транспортирования людей. Дороги кольцевые одноканатные. Линейные сооружения. Требования безопасности

Дата актуализации: 01.06.2025

ГОСТ Р 71893-2025

Подвесные канатные дороги для транспортирования людей. Дороги кольцевые одноканатные. Линейные сооружения. Требования безопасности

Обозначение: ГОСТ Р 71893-2025
Статус:принят
Название рус.:Подвесные канатные дороги для транспортирования людей. Дороги кольцевые одноканатные. Линейные сооружения. Требования безопасности
Название англ.:Suspended cableways for transportation of people. Single-rope ring cableways. Linear structures. Safety requirements
Дата актуализации текста:01.06.2025
Дата актуализации описания:01.06.2025
Дата издания:07.05.2025
Дата введения:01.09.2025
Нормативные ссылки:ГОСТ 9.107;ГОСТ 12.1.004;ГОСТ 13580;ГОСТ 14098;ГОСТ 15150;ГОСТ 19804;ГОСТ 23118;ГОСТ 24379.0;ГОСТ 24379.1;ГОСТ 27751-2014;ГОСТ 32484.1;ГОСТ 32484.2;ГОСТ 32484.3;ГОСТ 32484.4;ГОСТ 32484.5;ГОСТ 32484.6;ГОСТ 32578;ГОСТ 33855;ГОСТ 34872 ;ГОСТ EN 795;ГОСТ EN 13478;ГОСТ ISO 898-1;ГОСТ ISO 898-2;ГОСТ ISO 12100;ГОСТ Р 2.102;ГОСТ Р 2.601;ГОСТ Р 2.610;ГОСТ Р 50571.16-2019;ГОСТ Р 53688;ГОСТ Р 54124;ГОСТ Р 57292;ГОСТ Р 57342;ГОСТ Р 57351;ГОСТ Р 57355;ГОСТ Р 57358;ГОСТ Р 57359;ГОСТ Р 57997;ГОСТ Р 58035;ГОСТ Р 58938;ГОСТ Р 59106;ГОСТ Р 70116;ГОСТ Р 70132-2022;ГОСТ Р 71233;ГОСТ Р 71234;ГОСТ Р 71236;ГОСТ Р ИСО 5817;ГОСТ Р ИСО 9606-1;ГОСТ Р ИСО 10042;ГОСТ Р ИСО 12494;ГОСТ Р ИСО 14122-1;ГОСТ Р ИСО 14122-2;ГОСТ Р ИСО 14122-3;ГОСТ Р ИСО 14122-4;СП 14.13330;СП 16.13330.2017;СП 20.13330;СП 22.13330;СП 24.13330;СП 43.13330.2012;СП 45.13330;СП 50-101;СП 52-102;СП 53-101;СП 63.13330;СП 64.13330;CП 70.13330.2012;СП 128.13330;СП 164.1325800;СП 248.1325800;СП 295.1325800;СП 305.1325800;СП 428.1325800;СП 430.1325800;СП 479.1325800;СП 497.1325800;СП 513.1325800
Область применения:Настоящий стандарт устанавливает требования безопасности к линейным сооружениям одноканатных кольцевых пассажирских подвесных канатных дорог (ППКД), применяемые при проектировании, изготовлении, ремонте и реконструкции
Расположен в:Государственные стандарты Общероссийский классификатор стандартов Железнодорожная техника Оборудование для канатных дорог
ГОСТ Р 71893-2025ГОСТ Р 71893-2025ГОСТ Р 71893-2025ГОСТ Р 71893-2025ГОСТ Р 71893-2025ГОСТ Р 71893-2025ГОСТ Р 71893-2025ГОСТ Р 71893-2025ГОСТ Р 71893-2025ГОСТ Р 71893-2025ГОСТ Р 71893-2025ГОСТ Р 71893-2025ГОСТ Р 71893-2025ГОСТ Р 71893-2025ГОСТ Р 71893-2025ГОСТ Р 71893-2025ГОСТ Р 71893-2025ГОСТ Р 71893-2025ГОСТ Р 71893-2025ГОСТ Р 71893-2025ГОСТ Р 71893-2025ГОСТ Р 71893-2025ГОСТ Р 71893-2025ГОСТ Р 71893-2025

© 2013 Ёшкин Кот :-) Карта сайта